A LOUER NOUVEAU DANS LA PLAINE DU FOREZ – PROCHE DE MONTBRISON (42)

Venez découvrir le village du lundi au vendredi de 9h à 17h et le samedi matin de 9h30 à 11h30, nous serons présents dans la salle commune pour vous accueillir !

Votre nouveau logement à Marcilly-le-Châtel

Disponible à la location

Marcilly-le-Châtel

Petit village situé en bordure de la plaine du Forez dans la Loire, sur un ancien site volcanique. Il est réputé pour ses vignes qui font partie de l’AOC Côtes du Forez ainsi que pour sa volerie située au sommet d’un château médiéval du XIIe siècle détruit et reconstruit au XIXe siècle.

Proximité :

03 min de la Mairie de Marcilly

09 min de Montbrison

09 min de l’Hôpital de Montbrison

Transports :

Navette direction Montbrison

10min de la Gare en voiture

Le programme

Proche du village de Marcilly-le-Châtel, la résidence s’intègre parfaitement dans son environnement naturel verdoyant.

Le village sénior offre la possibilité d’avoir des repas à domicile, des professionnels de la santé, des activités organisées, ainsi qu’un cadre de vie calme et reposant

  • 7 maisons divisées en 4 logements de plain-pied
  • Superficie intérieur de 50m2
  • Terrasse et jardin privatifs
  • Normes RT 2012, PMR
  • Place de stationnement privée

Les maisonnettes sont conçues et aménagées pour faciliter les utilisateurs. Adapté aux normes PMR, avec des extérieurs, le village permettra un confort de vie pour chacun.

Un espace commun sera accessible afin de partager des moments conviviaux entre les habitants.

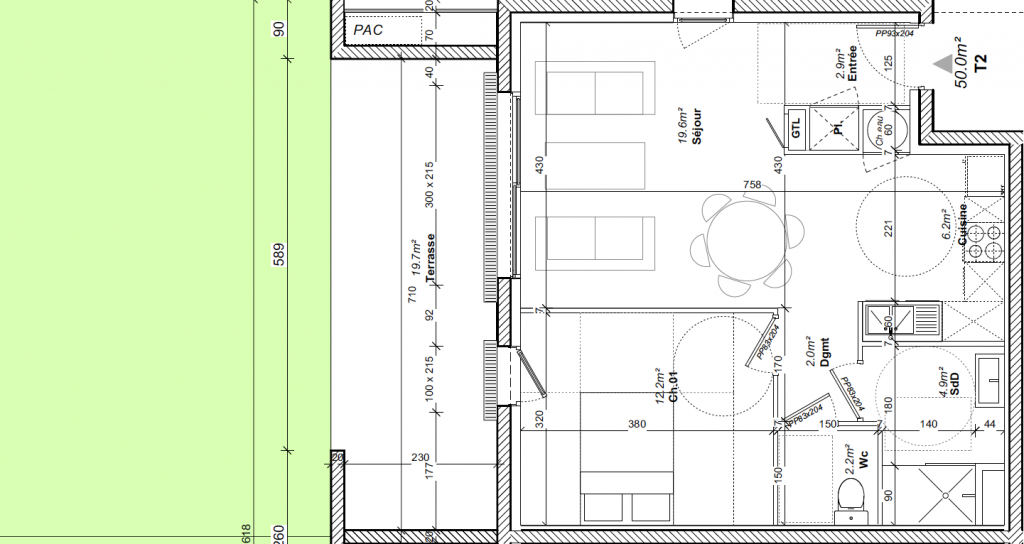
Les appartements

Appartement de 50m2, 2 pièces avec terrasse et jardin privatif

Un cadre de vie idéal et calme dans un parc de 1 hectare

Un stationnement extérieur pour chaque logement et parking visiteurs

Pratique, convivial, sécurisé et adapté

Livré entièrement fini, sans mobilier et cuisine

Prototype d’un appartement – Non contractuel

La salle commune

Un espace commun au coeur du village pour partager des moments de convivialités ainsi que des activités.

Intervention de professionnels locaux de la santé : médecins, infirmiers, kinés…

Divers services optionnels seront proposés :

  • Livraison de repas (à domicile ou salle commune)
  • Blanchisserie, ménage quotidien
  • Service de coiffure / Esthétique
  • Activités (pétanques, jeux de sociétés,…)
  • Sorties au marché de Montbrison…

Contact

Vous souhaitez de plus amples informations ? Laissez-nous vos coordonnées, nous vous recontacterons très rapidement :